
案例解析
工程名称:汉峪金谷A5-4#楼公寓
设计单位:山东宜和宜美供应链管理有限公司
建设地点:本项目位于济南市汉峪金谷
设计理念:本项目为汉峪金谷A5-4#楼公寓,以灰阶色调揉合温润木质的住屋,中性的风格中散发着优雅与慵懒。
时尚与质感生活的融合,色彩柔和雅致,摒弃浮夸的线条和装饰,还原材质的本来美感,优美简洁的线条,简洁实用的家具,
利用灯光的运用设计,营造舒适又充满灵感的生活空间。回到家的那刻,感受到身体心灵的全然放松。

〇 总立体图

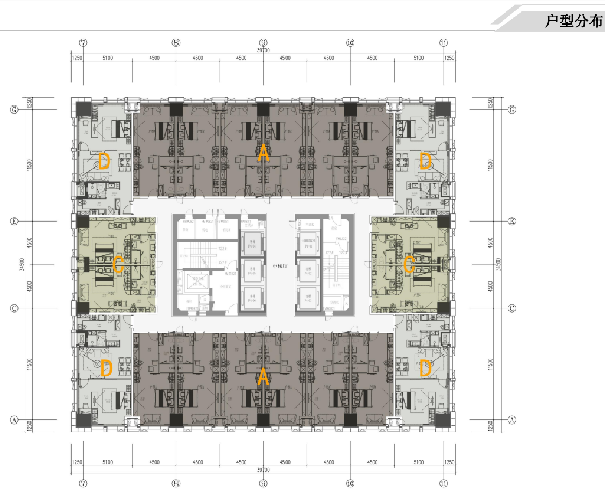
〇 平面布局图

〇 A户型
客厅素净的电视墙错落有致,纹理自然简约,柜体结合展示及存储功能,共构空间视觉端景。
订制的弹性沙发让空间可依需求灵活变化,餐桌可兼备书桌功能,便于屋主日常的办公与休闲,
随处皆能享受宁静惬意的生活。

〇 C户型
空间设计运用线性构成规划简明利落的极简格调,再用大面积灰色调铺陈出从容雅致的空间底蕴,
创意的艺术摆件在素净自然的风格元素中增加灵动气息。
卧室在理性克制的距离感与舒适惬意的松弛感之间寻得了平衡,构建私人领域的归属感。
格纹与线条的穿插带入秩序性,内敛且沉稳的色彩拥有安定人心的力量,让所有的情绪都在这里得到舒缓。

〇 D户型
卧室中浅色的软包床头加上灰色壁布背景墙为整个主卧空间铺垫了深邃而稳重的基调,氤氲出富有质感的静谧休憩空间,
无限延展的自由气息贯穿卧室内外,让业主在其中静享安静的私人时光.床头灯槽简约优雅的设计,搭配着整体空间的舒适氛围;
落地窗在最大程度上引光入室,为卧室带来了自然与阳光的洗礼.书桌美观且实用,足以提供一人共同工作学习的空间,
此外它即节省空间,又有充足的置物面积。
谢谢赏析!