
案例解析
工程名称:网化产业互联网有限公司办公楼平面设计方案
设计单位:山东宜和宜美供应链管理有限公司
建设地点:本项目位于济南市历城区
设计理念:本项目为上海网化化工科技有限公司,上海网化商城总部基地建设工程;落户济南章锦综合保税区,独栋办公楼,花园式办公环境,建筑面积约5100平米。项目整体采用现代风格,采用线条等元素,展现空间的整体感与现代感;空间利落、时尚。员工区注重舒适感温 馨感。贵宾接待室营造庄重、大气的氛围、总裁办公室注重现代感和高级感。

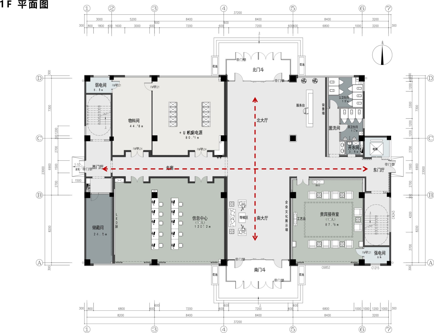
〇 一层平面布局图

〇 二-四层平面布局图

〇 五层平面布局图

〇 六层平面布局图

〇 大堂效果图
进门的大厅室内墙面、地面、顶棚以及家具陈设等均以简洁的造型、纯洁的质地、精细的工艺为其特征。
延续现代简约常用的黑白色彩搭配,空间层次感加强,墙面大多用了石材,空间效果更加通透。

〇 文化墙效果图
文化墙区域用LED显示屏展示公司文化和成果,方便在等待区的客人观看,用绿植加以点缀可以让空间更加生动。

〇 办公区效果图
办公室以简约常用的的黑白灰三个颜色做大范围的搭配,中间穿插木色来提升空间的质感同时缓解了视觉冲击力强的感觉。
吊顶方面没有采用全吊采用局部吊顶,空间更加宽敞,同时采用局部吊顶与地面颜色呼应区分来从空间上划分不同的办公区域
减少了实物划分,保证了空间的视觉通透感。

〇 休闲区效果图
休闲区是阅读水吧一体的空间。空间整体采用异形吊顶增加空间的趣味性。
在此空间内木制作居多并且搭配暖色灯光营造温馨舒适的休闲环境。

〇 信息中心效果图
此空间为专门信息采集工作人员设立,巨大的LED屏幕更具科技感,满足工作需求。

〇 多媒体培训室效果图
可容纳百人的多媒体教室,不放桌子就很好的解决了开大会凳位不够的的问题。

〇 会议室效果图

〇 贵宾接待室
中南海风格的贵宾接待室更显大气,无主灯设计使空间宽敞通透,深色木饰面板与浅色壁布结合空间更加庄重。

〇 餐厅包间空间
新中式风格的宴会厅可容纳15人,主要用于临时宴请,成个空间布景温馨,以暖黄色为主色调,温馨的气氛吃饭更加愉悦。

〇 小包间效果图
以木色为主色调,搭配含有中式元素的挂画,干枝,茶桌和圈椅,营造出一个新中式茶室,对于短时间会客茶室是很好的选择
谢谢赏析!