
案例解析
工程名称:吉华大厦酒店公寓项目设计方案?
设计单位:山东宜和宜美供应链管理有限公司
建设地点:本项目位于济南市市中区
设计理念:此项目位于济南市市中区英贤街19号,项目总面积6000㎡。
本次吉华大厦的装修和家居设施原则上统一标准,户内装修以新中式豪华装修为主,配备高档家具、家电和生活用品,带来奢华尊贵入住体验。?
新中式设计不仅保留了中式装饰风格,又融合了现代设计,好似一副现代的水墨画,传统水墨与现代元素交相辉映,既儒雅又现代。?

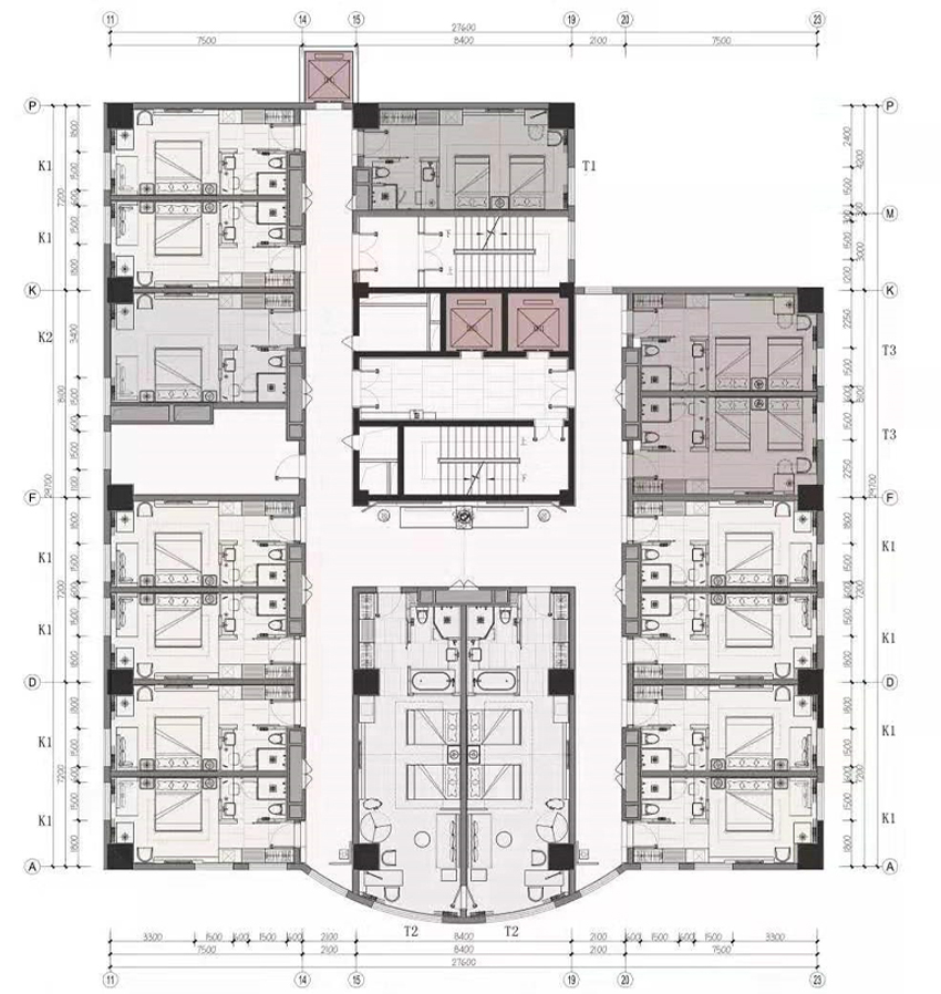
〇 平面布局图

〇 标准间K1房型效果图
不同于传统中式的繁琐与沉闷,新中式风格更强调将一切化繁为简,在造型基础上极致简约。
再搭配精巧的灯具、雅致的挂画、富有情趣的博古架等使整个居室在浓浓古韵中渗透几许现代气息。

〇 标准间K1房型效果图

〇 双床房(T1)效果图
设计中,保持极简的设计调性,白色,米黄,深棕为主色调。床头背景墙运用山水元素硬包,柔和的灯光下显得格外肃静典雅。

〇 标准间K2房型效果图
客房设计精炼简洁,中式传统家具在设计师手中被重新演绎出现代简约意蕴,悠远的历史情怀与时尚凝练的手法温柔碰撞,
给宾客带来放松感之余亦衬托出酒店独特的中式意境。

〇 双床房(T1)效果图
设计希望给宾客创造一种放松而宁静的“家”的氛围,木质的地板亲和舒适,丝质墙纸散发微光,细腻柔和的材质与色彩,
注重细节与使用的便利,而非强调设计的抢眼与特殊,让人既不会感受到空间的压迫,完全地放松与融合,用时又与文化相玩味。

〇 卫生间洗手池效果图

客房个性化的设计,使得每个房间都充满独特的魅力,带来无数惊喜。客人不但能在一个房间里品味到宁静典雅、细腻浪漫,
也可以在另一个房间中感到尊贵大气、庄重沉稳。
所有房型都充分注重了人与环境的交流与对话,隐隐透露出东方文化中远离喧嚣的尊崇与高贵。
谢谢赏析!