
工程名称:北京房山 民宿 产品设计
设计单位:山东宜和宜美供应链管理有限公司
建设地点:本项目位于北京房山
设计理念:本项目位于北京市房山区,临近大学城。让旅客在繁华的紧张的都市中,也有这么一处朴实自然的民宿。
本项目完全诠释了民宿有别于旅馆或饭店的特质,使其不同于传统的饭店旅馆,也许没有高级奢华的设施,
但它能让人体验当地风情、感受民宿主人的热情与服务、并体验有别于以往的生活。

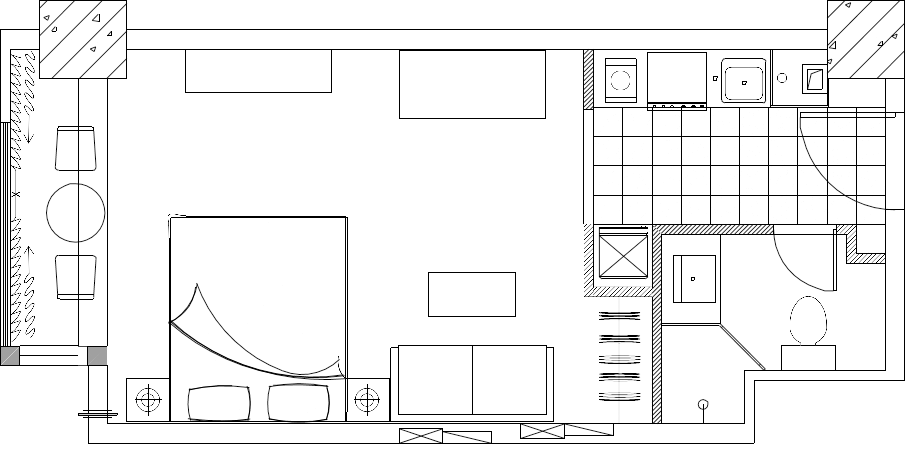
情侣客房·方案一·效果图

〇?此房间情侣入住,空间色调深沉且神秘,而又不失情侣间的浪漫。
用色大胆,突出私密、个性、温馨、浪漫、的设计风格,
每一个细节都融入了人性化、细微化、特色化的服务,在此民宿中有突出体现。
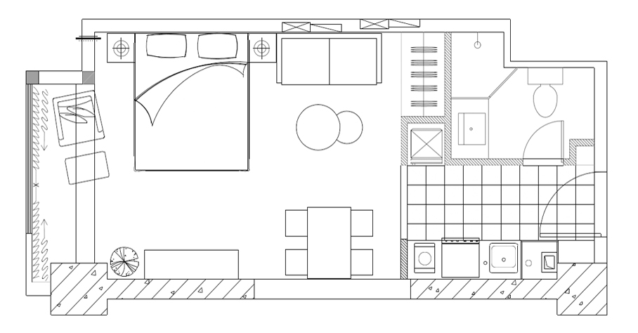
情侣客房·方案二·效果图

〇 第二版的设计,以常规双人床代替了特色圆床,并增加了纱帘,给人以若隐若现而又浪漫的感受。
顶部吊顶增加星空的设计,追求个性与时尚,体验浪漫和温馨。

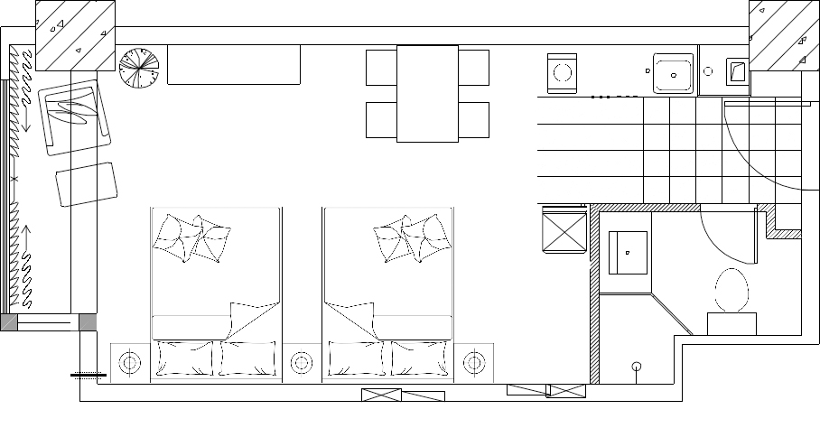
日式·四人间·方案一·效果图

〇 日式家具以其清新自然、简洁的独特品味,形成了独特的家具风格,对于活在都市森林中的我们来说,
日式家居环境所营造的闲适、悠然自得的生活境界,也许就是我们所追求的。
日式·四人间·方案二·效果图

〇 日式风格家居以简约为主,日式家居中强调的是自然色彩的沉静和造型线条的简洁,和室的门窗大多简洁透光,
家具低矮且不多,给人以宽敞明亮的感觉。

普通客房·方案一·效果图

〇 民宿中的客房,与商业酒店的氛围不同,民宿中的客房给人更有家的温馨与质朴,更像是一个家庭的生活场景,
区别传统客房的呆板,增添了人情味。
普通客房·方案二·效果图

〇 此客房采用了黑白灰现代简约的色调风格,在现在都市的忙碌生活中,营造出年轻人时尚前卫的感觉。

亲子房·效果图

〇 民宿中的亲子房设计温馨舒适,色彩和空间搭配上明亮、轻松、愉悦,绿色墙漆与大自然最为接近,
不仅适合儿童天真的心理,而且鲜艳的色彩会激发起希望与生机。

工业风·双人间·效果图

〇 灰色系的墙面营造雄性、冷静、理性的质感。铁艺的点缀增加了室内的冷元素,少了华丽的装饰,多了一份质朴。
搭配上皮质家具展现出沉稳、大气,达到与工业风相融合的效果。

电竞五人间·效果图

〇 增添电竞主题五人间,它不仅有高配置的电脑,而且困的话就可以直接休息。方便小群体培养团队意识与集体荣誉感。
谢谢赏析!