
案例解析
工程名称:章丘双创产业园售楼处平面设计方案
设计单位:山东宜和宜美供应链管理有限公司
建设地点:本项目位于济南市章丘区
设计理念:本项目位于济南章丘区经十东路与工业四售楼处使用,同时兼顾商务洽谈、休闲娱乐功能,整体风格定位:精致工业风与欧洲复古风巧妙结合、搭建商务休闲风格。整体色调以咖色、灰色为主,灯饰及绿植饰品路东南方向,项目前期作为进行点缀,给整个空间打造一个原生态,休闲舒适的商务空间。在当下快节奏的都市生活中能有一个安放心灵的地带。

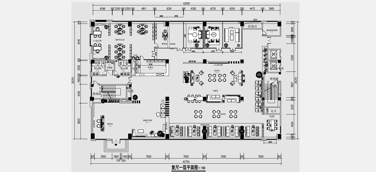
〇 平面布局图

〇 平面布局图

〇 平面布局图

〇 接待区效果图

〇 吧台区效果图
进门接待区与内部洽谈区之间采用红砖隔断墙,达到及通透隔而不断的效果,水吧台的位置位于整个接待区及洽谈区VIP之间,达到功能上的方便使用,更是整个空间较为出彩的部分,原木板与水泥材质结合,更给人舒适原生态的干体验。

〇 深度洽谈区效果图
深度洽谈区域,采用原砖地台效果,起到区域划分作用,沙发之间的纱帘使开敞空间变为私人空间,但不会阻挡光线,同时增加通透效果

〇 书吧区示意图
书吧区域采用大面积墙面原木书架,木质桌椅,还原原生态本质,搭配精灯饰,采用灯光效果进行提亮点缀,给人安静舒适感。
谢谢赏析!